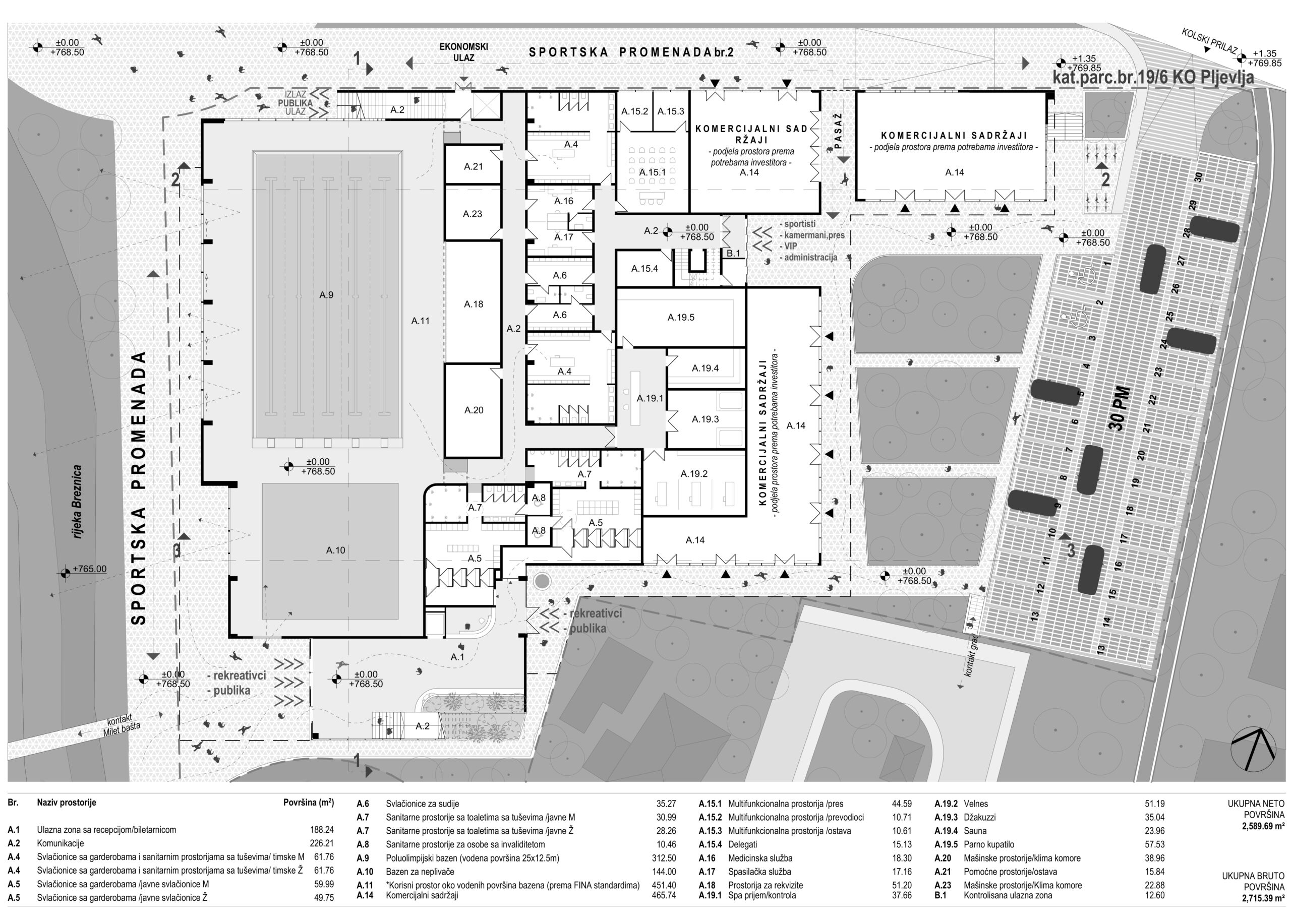
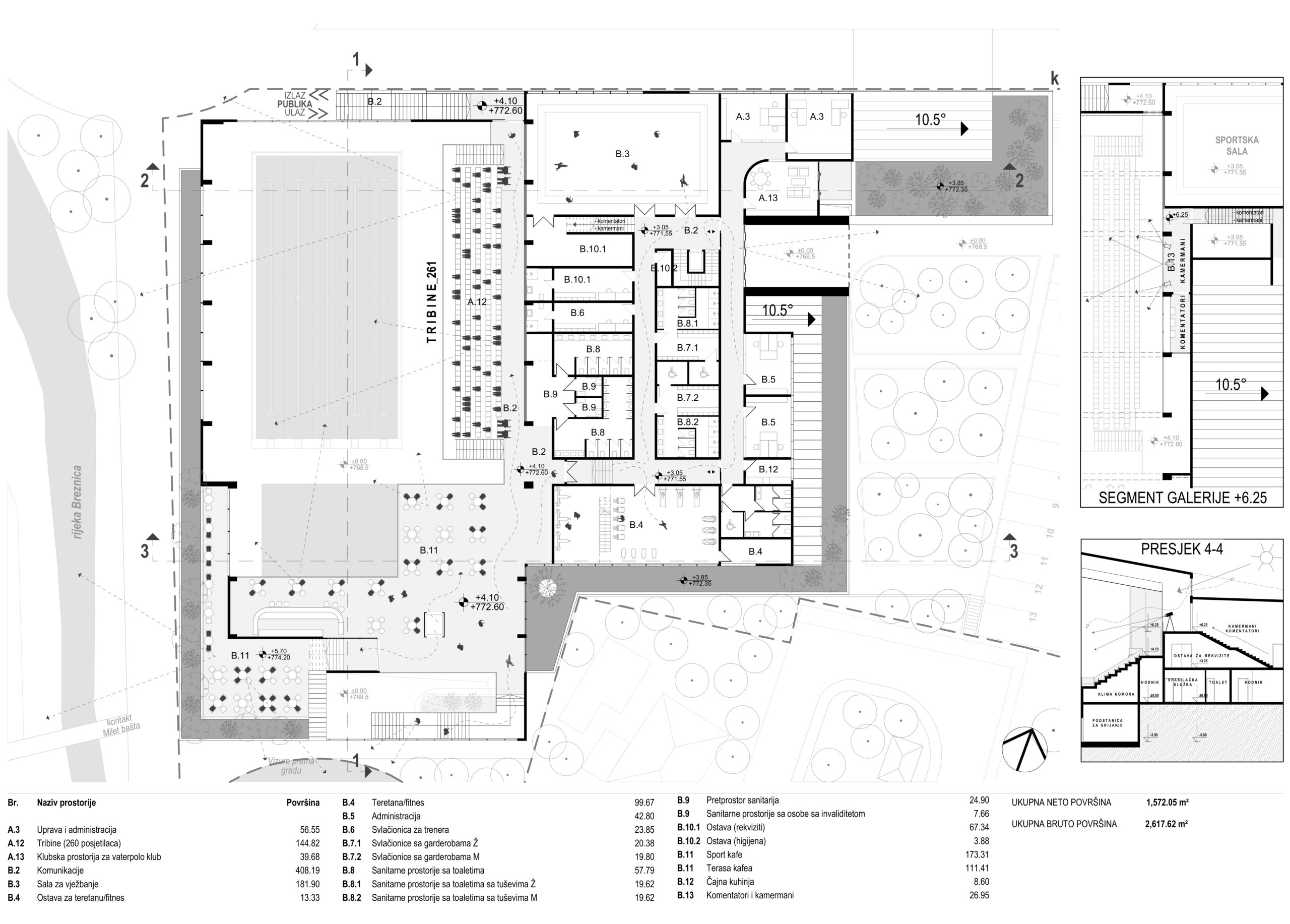
Dati kontekst, opravdano je prihvaćen kao imperativ u kreiranju volumena kako bi se dobila logična arhitektonska kompozicija. Iz tog razloga je prihvaćen oblikovni jezik dominantnog dvovodnog krova sa varijacijama koje kompoziciju čine vizuelno prihvatljivom. Volumen je razuđen ali samo do nivoa koji obezbjeđuje njegovu kompaktnost. Ambijent zelenila u parku, sa rijekom Breznicom, predstavlja idealnu podlogu da se primijeni bijela boja volumena i drvena obloga sa donje strane nadstrešnice i u dijelu objekta. Volumen i arhitektonski izraz postojeće sportske dvorane u parku formiraju prijatan, pa samim time, i obavezujući kontekst. Mimikrijska kompozicija bazena se pokazuje kao logično rješenje jer poštuje sve bitne zatečene elemente. Ciljano je ostvaren intenzivan vizuelni dijalog između objekta bazena sa posjetiocima i pješacima koji se kreću promenadom. Otvaranje bazena i njegova integracija sa šetnicom kao i ulazni hol, podcrtan stepeništem predstavljaju „alate“ kojima je taj efekat ostvaren. U tom cilju je predložena i nadstrešnica, kao bitan element arhitektonske kompozicije. Ona naglašava kretanje i intimizira okolne, pješačke komunikacije sa objektom.





















