DVOJNA KUĆA U LAPČIĆIMA, BUDVA

DVOJNA KUĆA U LAPČIĆIMA, BUDVA

DVOJNA KUĆA U LAPČIĆIMA, BUDVA

Godina projektovanja:
2025.
Lokacija:
LAPČIĆI , BUDVA, CRNA GORA

DVOJNA KUĆA U LAPČIĆIMA, BUDVA

Godina projektovanja:
2025.
Lokacija:
LAPČIĆI , BUDVA, CRNA GORA

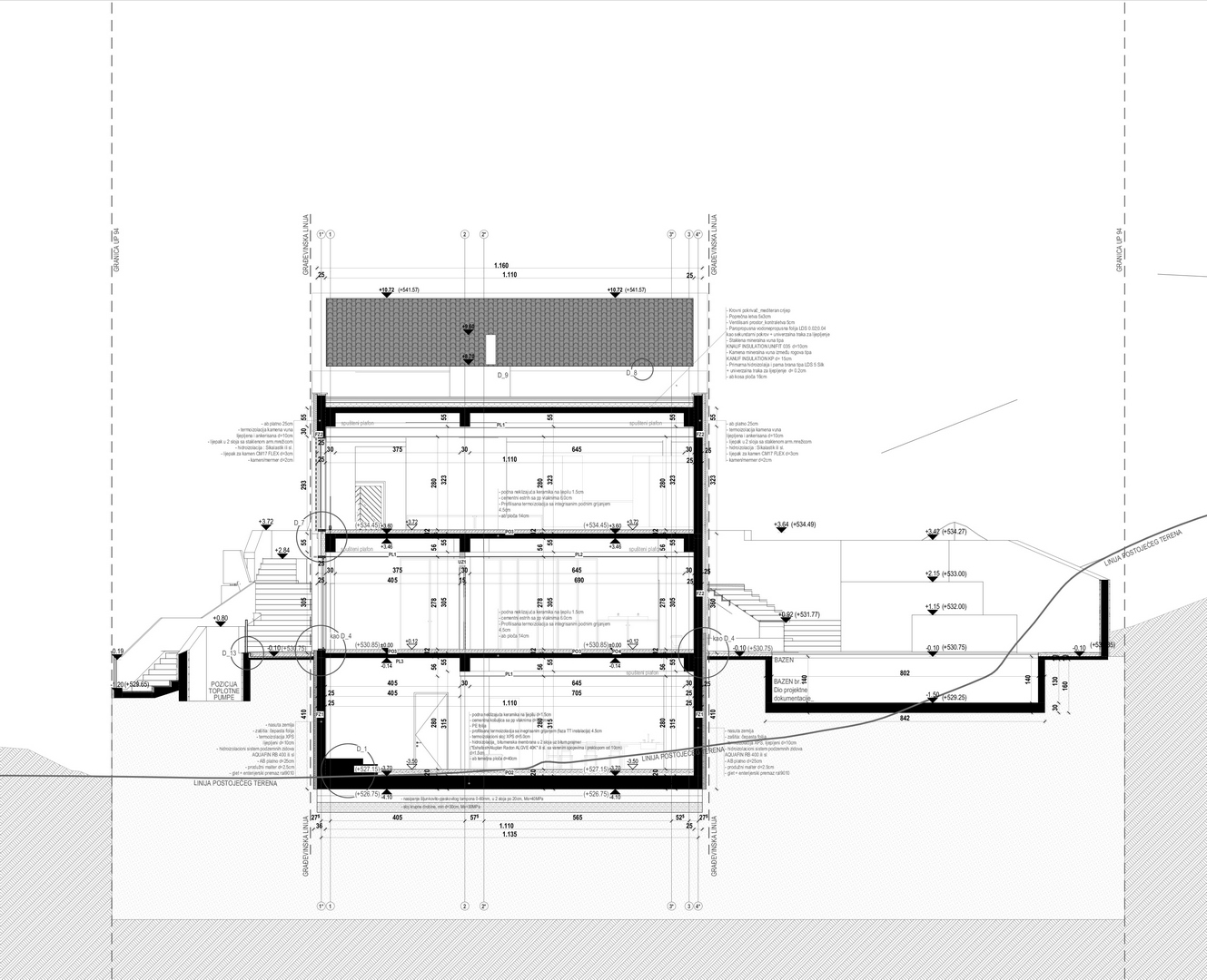
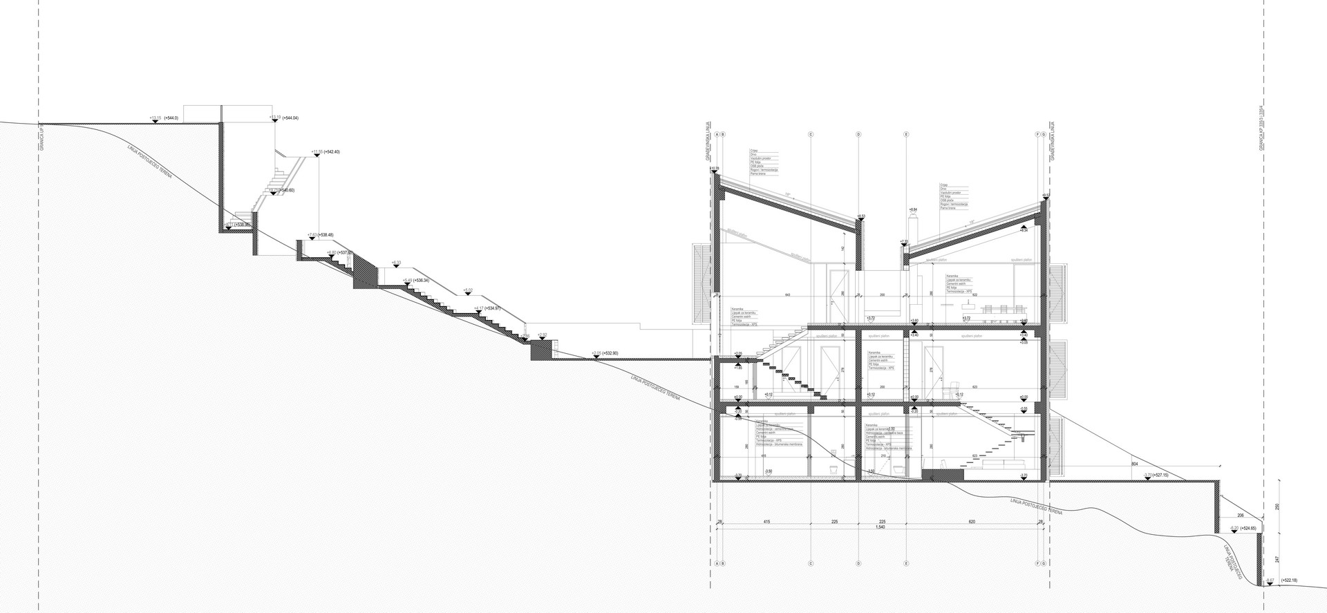
Analizom uticajnih faktora, prvenstveno konfiguracije terena i tradicionalne paštrovačke kuće, ali i savremenih potreba korisnika ponuđeno je arhitektonsko rješenje za stambeni objekat spratnosti S+P+1. Objekat se pozicionira u granicama građevinskih linija, a s obzirom na ograničen gabarit dat GL linijama, igrom volumena dvije kuće cilj je bio približiti se arhitekturi tradicionalnih  paštrovačkih naselja. Konfiguracija terena, zona zaštitnog pojasa i pozicije GL linija definisale su poziciju objekta na parceli. Na sjevernoj strani ostvarena su 3 parking mjesta i pješački prilaz korisnika riješen kroz niz serpentina i žardinjera (savladava se visinska razlika od cc 11m). Sa ciljem da se formira objekat reprezentativne arhitekture u dijelu sprata i krovnih ravni, objekat je podijeljen na dva dijela, pa se „čita“ kao dvije strukture jednovodnih krovova. Obezbijeđene su maksimalne vizure ka moru uz neophodnu individualnost korisnika. Arhitekturu objekta čini jasno definisana kubična forma „pocijepana“ na dvije strukture jednovodnih krovova. Upotrebom staklenih površina i savremenih materijala objekat je pretočen u savremenu formu. Neizostavan element vokabulara su pergole na ulaznim partijama, pižuni, potporni zidovi u uređenju obrađeni kamenom itd.